
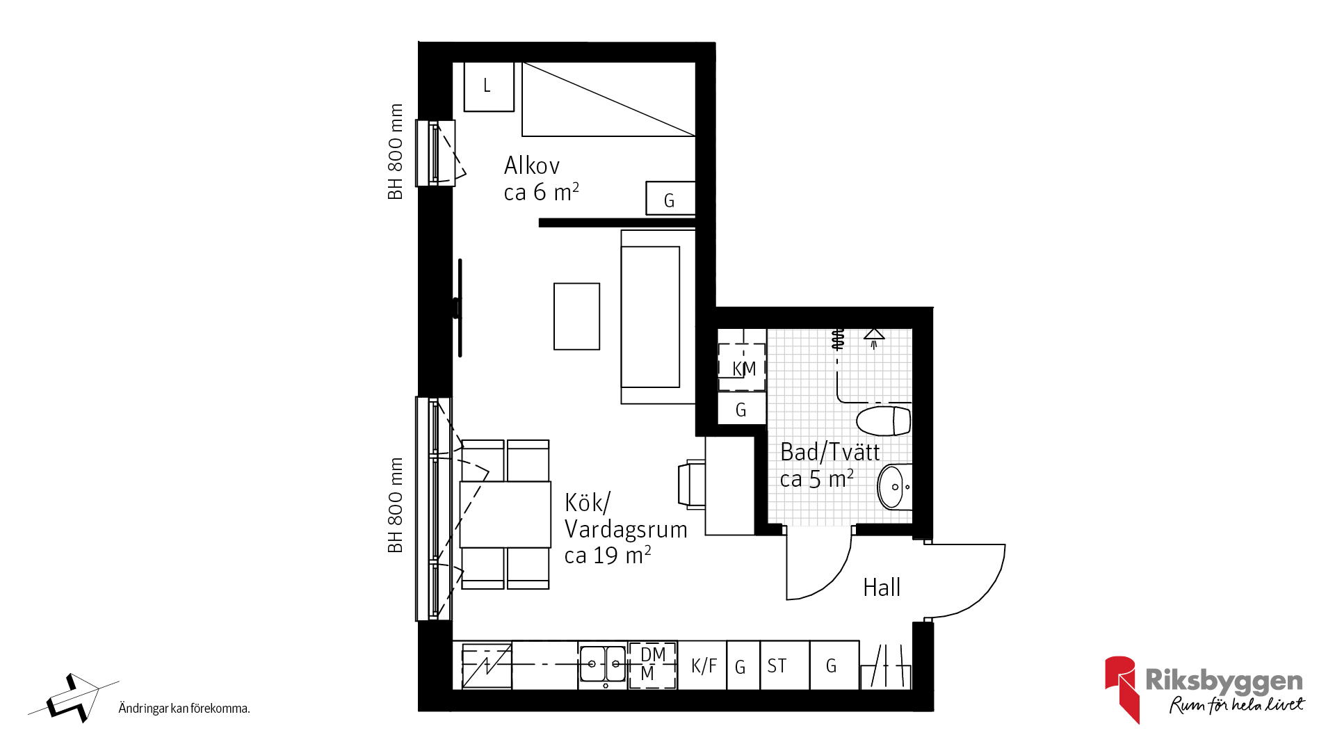
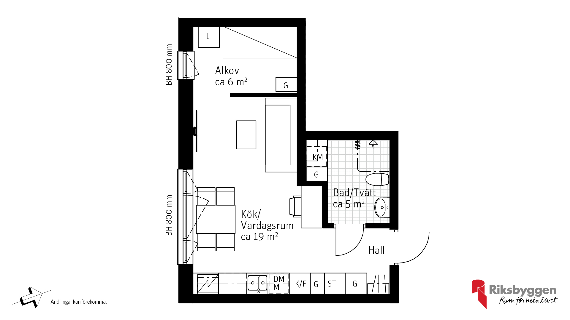
Välplanerad lägenhet med öppen planlösning och alkov. Välutrustat kök med diskmaskin, micro, kyl/frys. Badrum med kakel på väggarna och klinker samt el komfortvärme på golv. Kombinerad tvättmaskin och torktumlare. Bostaden är inte uppförd ännu utan säljs på ritning. Prel. inflyttning kvartal 3 2026
5 september
November 2024
Mars 2025
April 2026
Prel. sept 2026
Är du intresserad av en lägenhet och vill veta mer. Kontakta vår mäklare Josefin Granström på 070-271 40 89. Först till kvarn gäller!
Våra mäklare på Mäklarcity håller öppet för att ta emot dig om du har frågor eller funderingar gällande Brf Arken. Titta gärna förbi!
Öppettider: Måndag – fredag kl. 9.00-16.00
Adress: Kungsgatan 64, Umeå




























Här bor du mitt i smeten med det mesta du kan behöva utanför dörren och gott om butiker och restauranger inom promenadavstånd.
Längre ned på gatan har du Norrlandsoperan, runt knuten ligger Folkets hus och Gitarrmuseet, känd för att vara en av världens största samlingar av gitarrer. Perfekt för ett spontanbesök följt av middag på en av stadens många restauranger och krogar.
Centralt i Umeå bygger vi 29 nya bostadsrätter i Brf Arken. Bor du här har du promenadavstånd till det mesta. Inflyttning är planerad till hösten 2026.
Oavsett om det är kultur, shopping eller ett resturangbesök som lockar så har du allt på bekvämt gångavstånd från din bostad. Bekvämt är det också att bo i helt nyproducerad lägenhet av modernaste standard.
Huset blir fyra till sex våningar högtmed 29 lägenheter om ett till fyra rum och kök. Det flesta lägenheter har en inglasad balkong, vissa lägenheter har till och med två inglasade balkonger.
Parkeringsplatser kommer erbjudas i närliggande parkeringshus.