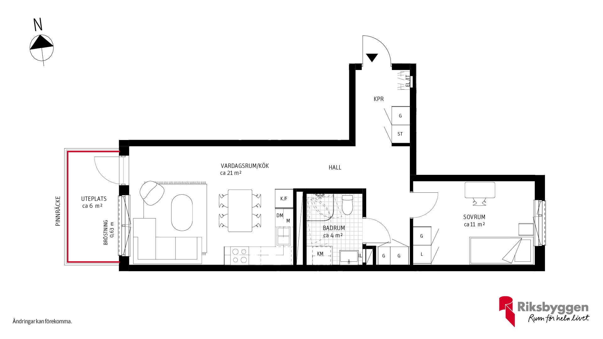
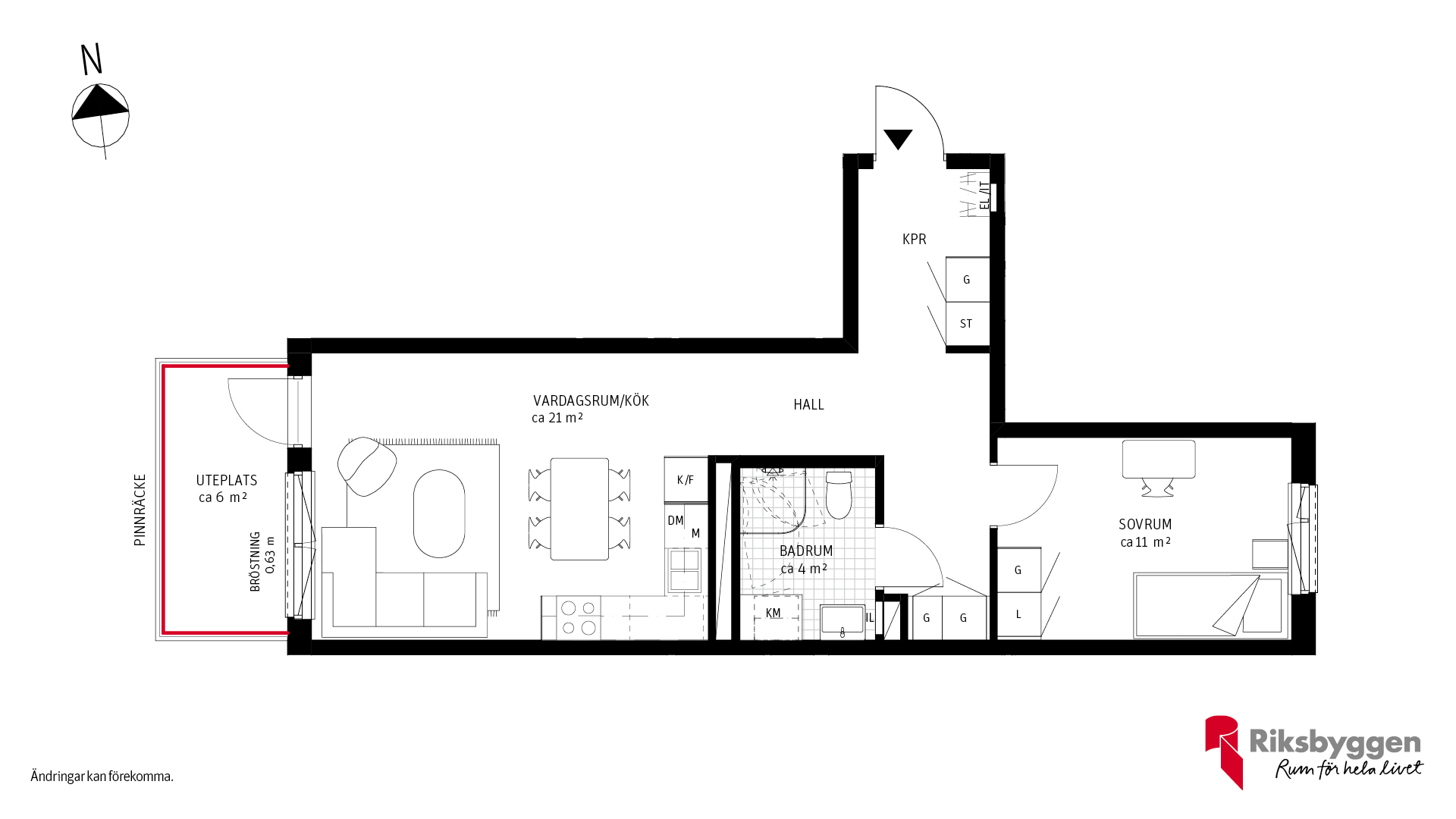
Genomgående 2 rok med uteplats i västerläge. Öppen planlösning mellan vardagsrum och ett trivsamt vinkelkök. Vit köksksinredning från Vedum och goda bekvämligheter med bland annat mikro och diskmaskin. Badrum med god bekvämlighet med kombinerad tvättmaskin och torktumlare. Välkommen hem i juni!
2021
Augusti 2022
Trapphus 4 och 5, feb 2025
från kvartal 4, 2024
2025
Varmt välkommen att inspireras i vår visningslägenhet! Det går även bra att kontakta mäklaren för att boka in privat visning för att titta på andra lediga lägenheter!
Ingång från Boulevarden 9, Täby Park
Varmt välkommen att inspireras i vår visningslägenhet! Det går även bra att kontakta mäklaren för att boka in privat visning för att titta på andra lediga lägenheter!
Ingång från Boulevarden 9, Täby Park
Varmt välkommen att inspireras i vår visningslägenhet! Det går även bra att kontakta mäklaren för att boka in privat visning för att titta på andra lediga lägenheter!
Ingång från Boulevarden 9, Täby Park

















Hall/kapprum
Grått golvklinker 30x30cm. Vitmålade väggar.
Kök
Vitpigemterat askgolv. Vitmålade väggar. Rostfria vitvaror från Electrolux; Kyl och frys eller kombinerad Kyl/frys, induktionshäll, ugn, inbyggnadsmicro och diskmaskin.
Vardagsrum
Vitpigemterat askgolv. Vitmålade väggar. Fönsterbänk i polerad natursten.
Sovrum
Vitpigemterat askgolv. Vitmålade väggar. Fönsterbänk i polerad natursten.
Badrum
Klinker på golvet och kakel på väggarna. Halvrunt duschhörn i klarglas
För utförligare information se säljbroschyren.
Stockholms tidigare galoppfält omvandlas till en helt ny stadsdel med namnet Täby Park. Ett trivsamt bostadsområde med ett rikt utbud av kultur, rekreation, mötesplatser och service samt plats för tusentals nya invånare. Som aktiv samhällsutvecklare är vi med för att utveckla Täby Park till en karaktärsfull och socialt hållbar stadsdel med parker, storstadskvarter, arbetsplatser och nya bostäder med plats för tusentals människor. I närheten byggs även en ny skola och en simhall.
Brf Bersån är vårt fjärde kvarter i nya Täby Park. Vi är stolta över att vara med och utveckla ett av norra Stockholms mest intressanta utvecklingsprojekt.
Hitta din egen ”berså” bland 108 kvadratsmarta 1–5:or med balkong eller uteplats. Vårt nya kvarter i Täby Park växer fram på en lugn gata i kvarteret, alldeles intill ett charmigt torg och den pulserande boulevarden. Nära natur, stad och bra kommunikationer. En berså är ett rum att trivas i. En plats för gemenskap och egentid. En oas i staden. Inte för stort, men ändå med svängrum för allt och alla du tycker om. Så tänker vi när vi utformar vårt nya kvarter Brf Bersån i Täby Park. Lägenheterna är välplanerade in i minsta detalj för att skapa ljusa, hemtrevliga och flexibla hem som håller – år ut och år in.