
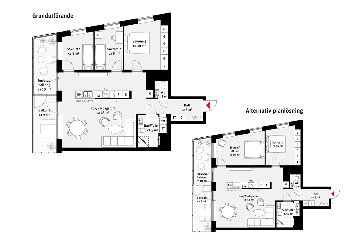
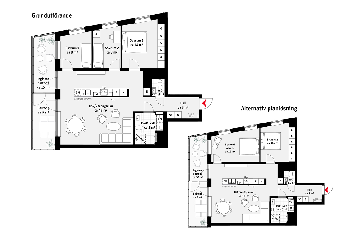
Fyra med öppen planlösning mellan matplats och vardagsrum och avskillt till köksdelen. Stor balkong i väster med en öppen del och en del som är inglasad. Fina gemensamma utrymmen som takterrass på 20:e våningen, gym med bastu och övernattningslägenhet finner du på entréplan.Här bor du nära naturen samtidigt som du har nära tillgång till stadens alla möjligheter. Du har gångavstånd till ettans buss och Ramlösa station.
Försäljning pågår
Januari 2024
Kvartal 2 2026
September 2026
Välkommen på visning i Brf Panoramautsiktens visningslägenhet, där du samtidigt kan se alla lägenhetstyper som finns i huset. Anmäl deltagande till mäklaren: Mejl: anna.helsing@bjurfors.se .Mobil: 0701-64 67 05 . Hoppas vi ses!
Vi träffas i slutet av Pollettgatan intill grindarna till bygget.























Rummen har vitmålade väggar och socklar. Golven har mattlackad 3-stav ekparkett.
Köksinredning med vit alternativt gråmålade luckor. Handtag i metall. Spotlights under väggskåp. Rostfri induktionshäll.Inbyggnadsugn och micro enligt ritning. Diskmaskin.
Klinkerplattor på golvet och kakel på väggarna, rak läggning.
Golvstående WC-stol. Kommod med lådor och handfat i porslin. Väggspegel med LED-belysning.
Tvättmaskin och torktumlare. Kombimaskin i 1:or och 2:or.
Bänkskiva av laminat.
Toalettpappershållare, handdukskrokar. Handdukstork, elansluten. Infälld belysning i tak, spotlights.
Brf Panoramautsikten ligger i kv. Spårvagnshallarna — ett helt nytt stadskvarter med blandade boendeformer som vi kommer utveckla under tio år framåt. Här bor du granne med vackra tallskogar och de gemytliga villakvarteren i Miatorp. Kv. Spårvagnshallarna ligger mittemellan Helsingborgs stadskärna och Råås pittoreska fiskeläge, med närhet till både stad och hav. Förutom det har du nära till både buss, tågtrafik och Europavägarna.
Vill du ha ett aktivt liv når du både utomhusträning, padelbanor och andra typer av träning och aktiviteter för alla åldrar. Kanske detta är ett nytt kvarter för dig?
Brf Panoramautsikten, i kv. Spårvagnshallarna i Helsingborg, är en ny höjdare som kommer till stan. Här kan du ta hissen ner till gymmet eller upp till takterrassen där du bjuds på en fantastisk utsikt över stad och hav. Mitt mellan centrum och Råås pittoreska fiskeläge ska vi bygga en smäcker byggnad om 20 våningar med 108 moderna bostadsrätter på hög nivå. Ett attraktivt boende för en aktiv och stimulerande livsstil, lika nära hav och strand som service och upplevelser.
Brf Panoramautsikten blir ett modernt livsstilsboende för aktiva stadsbor som vill känna närheten till naturen och samtidigt ha nära tillgång till stadens alla möjligheter. Här kan du välja mellan moderna, välplanerade lägenheter om 1–6 rum och kök mellan 31 – 196 kvm på någon av husets 20 våningar.
Är du högt uppe i det blå eller mer jordnära? Här finns bostäder på alla nivåer. Ju högre upp i huset du kommer desto längre sträcker sig dina vyer, men ditt nya boende håller samma höjd oavsett vilket våningsplan. Takterrass på 20:e våningen, privat gym med bastu och en co-working-lounge på entréplan är visionen. Gemensamhetsytorna och inglasade balkonger är några attribut förutom utsikten som gör Brf Panoramautsikten till ett boendeval utöver det vanliga.
I Brf Panoramautsikten får alla lägenheter 2–6 rum och kök en generös balkong, vissa av dem två och till och med tre balkonger. För att du ska få en utemiljö som kan användas i alla väder, året runt har vi glasat in minst halva balkongen. Med den inglasade delen förlänger du utesäsongen och skapar ett extra rum för odling och umgänge. Det är stort nog för att både sitta eller odla kryddor. Här kan både du, dina vänskaper och basilikan växa och trivas.