
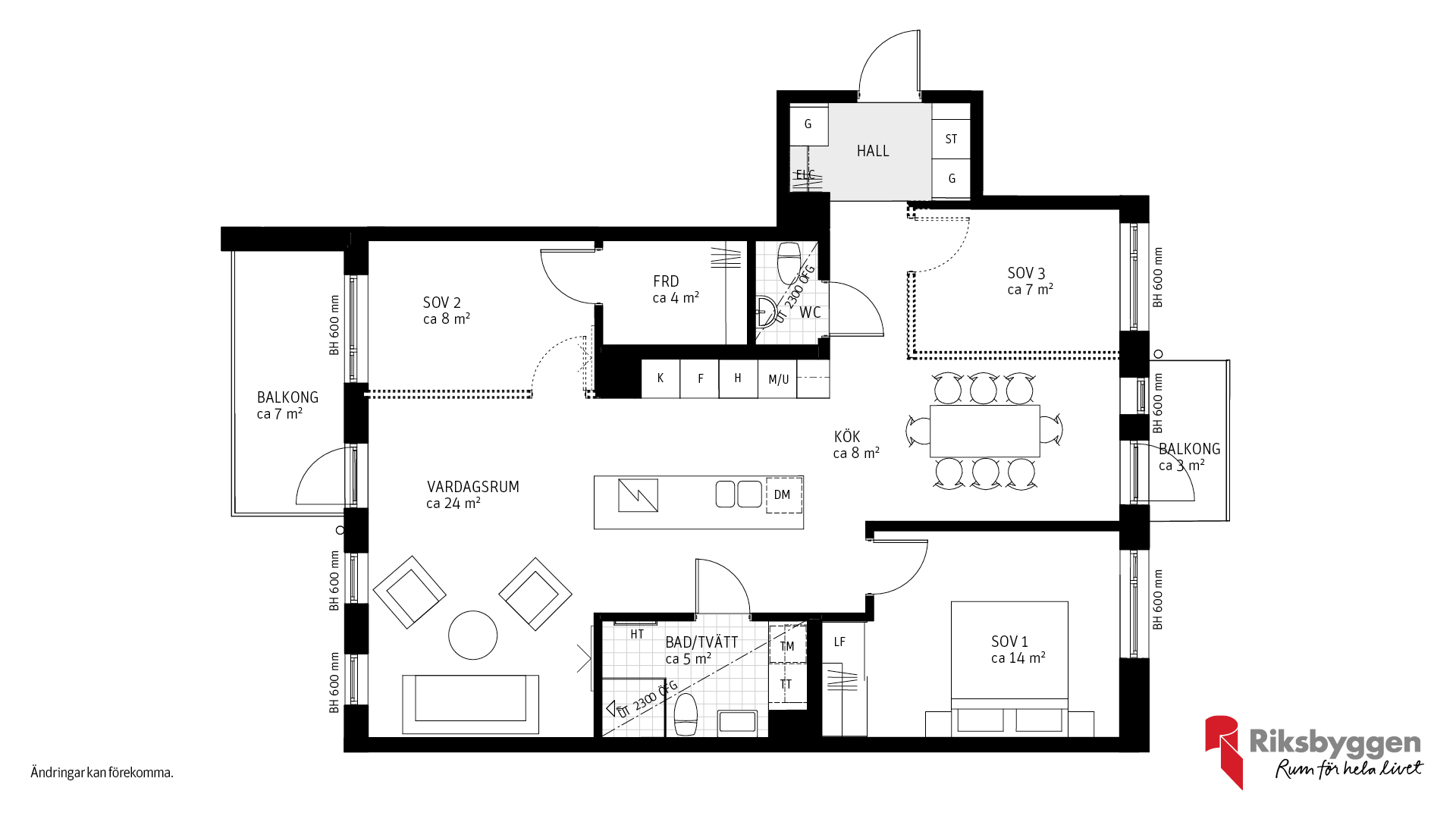
Möjligheternas fyra om 95 kvm. Här finns möjlighet till frånval av vägg, större matplats med utgång till balkong eller ett större vardagsrum, eller behåll och få tre sovrum. Kök med köksö där vardagsrummet är i öppen planlösning. Sovrum 1 med skjutdörrsgarderob. Badrum med tvättmöjlighet samt en gästtoalett i anslutning till entré. Hall med två garderober och avhängning.
2025
Vinter 2026
2026
2027
2028
Prel. kvartal 3 2028


















Hall
Golv: Tegel (i lgh 1011, 1012, 2011, 2012 och
2013), entrématta (lägenheterna från våning
2 till 6). Ekparkett, lätt vitpigmenterad mattlackad
13 mm, 3-stav.
Vitmålade väggar.
Hatthylla, garderob eller skjutdörrsgarderob.
Vardagsrum
Ekparkett. Lätt vitpigmenterad mattlackad
13 mm, 3-stav.
Vitmålade väggar.
Kök
Ekparkett. lätt vitpigmenterad mattlackad 13 mm, 3-stav.
Vitmålade väggar.
Skåpinredning från Vedum med släta luckor och lådor med handtag. Bänkskiva i laminat med underlimmad rostfri diskbänk. Stänkskydd med uppvik i laminat. Köksblandare, LED-belysning under väggskåp.
Spisfläkt från Pandora Green. Induktionshäll med inbyggd fläkt där spishäll är placerad i köksö. Vitvaror från Bosch. Infälld induktionshäll. Inbyggnadsugn och inbyggnadsmicro. Kyl och frys alternativt kyl/frys.
Helintegrerad diskmaskin.
Bad/tvätt
Klinkerplattor, 15X15 cm.
Vägg: Kakelplattor, 25X45 cm.
Badrumsinredning från Svedbergs.
För utförligare beskrivning se säljbroschyren.
Brf Kombarris är den första bostadsrättsföreningen i Stenhuggarstaden och erbjuder moderna lägenheter med en unik kombination av historisk charm och modern komfort. Här kan du njuta av en boendemiljö som är både trivsam och funktionell, med smarta planlösningar och högkvalitativa materialval. Brf Kombarris kommer bestå av cirka 62 bostadsrätter i form av ett hus. I hörnet inrymmer en lokal för framtida verksamhet.
Bostadsrättsföreningen består av lägenheter i olika storlekar, från ett till fem rum och kök. Alla bostäder är ljusa och luftiga med väl genomtänkta planlösningar som maximerar både förvaringsutrymmen och levnadsytor. De flesta lägenheter har balkong eller uteplats, vilket ger dig möjlighet att njuta av utomhuslivet direkt från ditt hem.
Lägenheterna bjuder på öppen planlösning med fokus på social samvaro och smart förvaring. Vi vill att det ska vara enkelt att bo bra. Gällande inredningen så kommer det finnas ett standardutförande med möjlighet att göra tillval för den som önskar.
Köken kommer vara från Vedum och inredningen i badrummen från Svedbergs. Självklart är det skön ekparkett, helkaklat badrum och fräscha nymålade väggar. Mer information om inredning kommer presenteras i samband med säljstart.
Huset ligger centralt i Stenhuggarstaden, med närhet till butiker, restauranger, caféer och service. Dessutom har du utmärkta kommunikationer till Göteborg, Varberg och Falkenberg, vilket gör det enkelt att pendla till arbete eller nöje.
Namnet Kombarris är en hyllning till platsens historia och de skickliga hantverkare som en gång arbetade här. "Kombarris" är ett gammalt ord för en stor stenbumling, vilket påminner oss om de massiva stenblock som en gång bearbetades här. Genom att bevara och integrera historiska influenser i den moderna arkitekturen skapar vi en unik boendemiljö som både är rotad i tradition och öppen för framtiden.
Vi tänker på miljön när vi bygger nya bostäder och byggnaderna kommer att certifieras med Miljöbyggnad Silver. Miljöbyggnad Silver är ett svenskt system för certifiering av byggnader som premierar låg energianvändning, goda innemiljöer och granskade materialval. Nivån ställer också höga krav på dagsljusfaktorer i bostaden, ljudmiljö, behovsstyrda ventilationssystem och fuktsäkerhet. Det garanterar bra, ljusa och energieffektiva bostäder – och ett långsiktigt hållbart bostadsområde.
Är det stort vardagsrum eller balkong med morgonsol som lockar? Med Riksbyggen Förtur får du chansen att se och välja nyproducerade bostadsrätter, äganderätter och hyrköp före andra.